



Outline
概要
| 構造規模 | SRC造 |
|---|---|
| エリア | 熊本市 |
| 工事種別 | マンションリノベーション |
| 面積 | 99.42㎡ |
| 間取り | 2LDK+doma |
笑顔が素敵な施主様ご家族。
「お気に入りの街に住みたい」と、物件を探すところから計画がスタートしました。
見つかったのは、南側に長く面した、99㎡のマンション。
物件を探すときからおっしゃっていたのは、
「長く過ごすリビングをできるだけ広く、開放感のある家にしたい」
という想いでした。
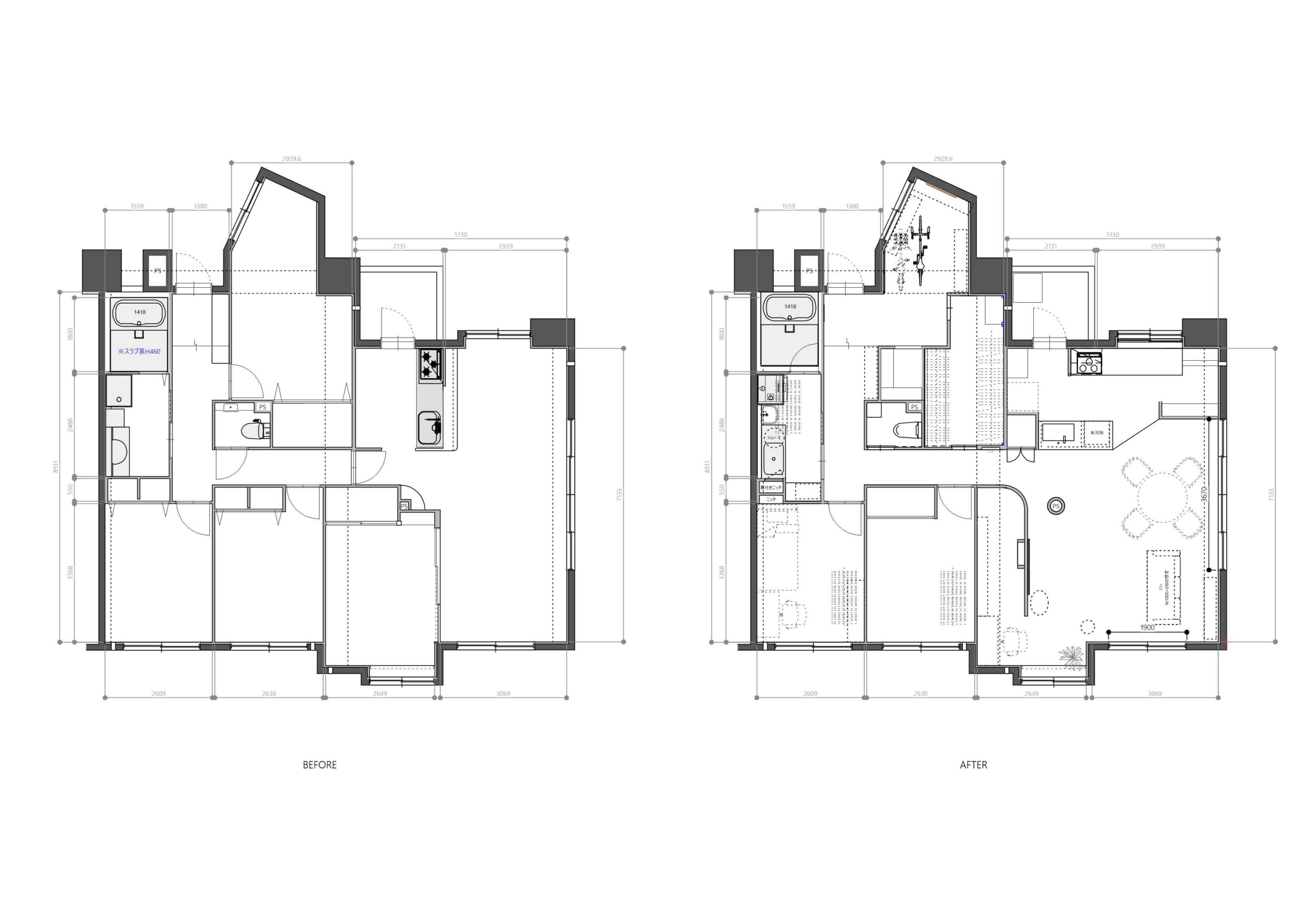
元々の間取りは4LDK。
個室は2部屋だけ残し、間取りを再編しました。
計画の中心になったのは、やはりリビング。
リビングを広くするために壁を取り払おうとすると、PS(パイプスペース)がリビングの中に現れてしまうことに。
そこで丸く壁をつくってパイプを囲み、丸柱のようなかたちに。
ご主人のアイデアで、もともとの構造も、この家らしい景色のひとつとして取り込みました。
テレビの裏には、本棚を兼ねた収納スペースと、
ちょっとしたワークスペースを設けました。
家族の気配を感じながら、それぞれの時間を過ごせる場所です。
玄関には、もともと一部屋だった部屋を大きく取り込み、広い土間を計画。
特別に何かを置いているわけではないけれど、
玄関に入ったとき、ふっと感じる空間の広さ。
その余白が、この住まいの気持ちよさをつくっています。
見た目だけではない、
使い勝手や効率だけではない、
ずっと暮らしていく場所だからこその工夫やこだわりがちりばめられたこの住まいで、
素敵なご家族の時間が、ゆっくりと重なっていきます。
CONTACT
お問い合わせ
ご相談、お問い合わせ、お見積もりのご依頼など
お気軽にご連絡ください。









