News
お知らせ
VOICE
お客様インタビュー vol.7 〜住みたい場所に、好きなかたちで〜
Date :
住まいに込めた価値観が、空間の隅々にまで息づく家。

理想の場所で、自分たちらしい暮らしをかたちにしたい。
そんな思いから、Kさまご家族のリノベーションは始まりました。
「とことん好きなものを選び、納得できる家をつくる」という選択は
Kさん一家の暮らしに、どんな変化をもたらしたのでしょうか。

ASTER:まずは、リノベーションを選ばれた理由から聞かせていただけますか?
ご主人:住みたいエリアが決まっていて、はじめは新築戸建てを想定して土地を探していたんです。
でも、なかなか条件にあう土地に巡り合えず…。
奥さま:そのうち土地探しに行き詰まって、マンションも並行して探すようになりました。
新築マンションも見に行きましたが、広さや間取り、内装の雰囲気が自分たちのイメージと合わなくて。
リノベーションなら、自分たちの理想がかたちにできるかも?って、夫婦で話をしていましたね。
ご主人:そんなとき、ちょうど理想的な中古マンションが売りに出たんです。
広さ・立地・価格のバランスがすごく良くて、管理費や修繕積立金も比較的安かった。
これはいいなと思ったので即決で購入。リノベーションに舵を切りました。

ASTER:物件探しの時点で、かなり考えられたんですね。
ASTERのことは以前から知っていてくださったんでしょうか?
ご主人:仕事柄、リノベーションの会社がいくつかあることは知っていたんです。
その中でも、ASTERさんは素材選びや雰囲気が落ち着いていて、好みだなと思っていました。
でも、決め手になったのは妻の希望ですね。
奥さま:実はうちの子どもが通っていた保育園も、ASTERさんが手がけられていたんです。
雰囲気も機能もとても良かったし、WEBサイトを見たら他の施工事例も素敵だなと思って。
何社か検討していた中でも「ASTERさんにお願いしたいね」ということになりました。
ご主人:設計・デザイン・施工を同じ担当者が一貫して進めてくれるのも良いと思ったポイントですね。
打ち合わせのたびに担当が変わらず、最初から最後まできちんと設計の話ができたので安心感がありました。
ASTER:ありがとうございます。家づくりで特にこだわったところを教えていただけますか?
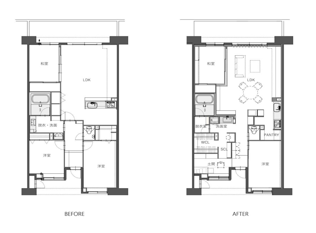
ご主人: 僕は「土間と和室をつくりたい」というのが最初からありました。
趣味の道具を置いておける空間がほしくて。
奥さま:私は素材の質感かな。壁は珪藻土にして、好きなタイルをあちこちに使ってもらいました。
あとは断熱性能! できる限り快適にしたかったので、内窓をつけて、換気計画もきちんと考えてもらいました。
ご主人:結果的に、暑い・寒いといった気温のストレスが減りました。


ASTER:家づくりの過程で一番悩まれたのはどのあたりですか?
奥さま:やっぱり間取りですね。何度も図面を見ながら考えました。
結果的に、最初に提案していただいたプランがいちばん自然だねってことで、原点回帰しましたけど(笑)
リビングの扉をなくしたのも正解だったと思います。

ご主人:妻はキッチンもかなり悩んでいましたね。
見たいショールームが福岡にしかなくて、何度か足を運びました。
いろいろなメーカーを見比べて。
納得いくまで見ないと気が済まないタイプだから(笑)
奥さま:選ぶのは大変でしたけど、楽しかったです。
家づくりって決めることが多いけど、それが面白かった。
ご主人:街を歩いていても「この建物のタイル、うちのと似てるね」なんて話すようになりました。

ASTER:実際に住んでみられての感想はいかがですか?
奥さま:快適です。収納を多くつくったので片付けやすいし、物の定位置ができました。
賃貸暮らしの頃、なかなか片付かなかったのが嘘みたいです。
ご主人:僕が気に入っているのは、和室からダイニング越しに水槽台を眺める角度。
照明や家具、水槽の配置がバランスよく納まっていて、ここで音楽を聴いている時間が好きなんです。
奥さま:この家に住み始めてから、以前よりきちんと掃除をするようになりました。
自分たちで選んだ愛着のある素材ばかりだから、きれいに保ちたくなるというか。
ASTER:「もう少しこうすればよかった」という点はありますか?
ご主人:押入れをもう少し大きくすればよかったとか、土間の広さがもう少し広かったら、、とか、ない訳ではないですが…。
リノベである以上、必ず制約があることは理解していましたし、面積の取り合いを考えて決めた結果なので、納得しています。
奥さま:私は特にないですが、これからやりたいことがたくさんあります!
ベランダの植栽を増やしたり、床の間に花瓶を飾ったり、掛け軸もまだ選べてないし。
子どもがもう少し大きくなったら、もっと楽しみが広がると思います。

ASTER:最後に、家づくりを終えての感想をお聞かせください。
ご主人:ひとことで言うと、面白かったですね。
決めるのは大変でしたけど、納得いくまで調べて考えた分だけ満足度が高いです。
自分たちで選んだ家だからこそ、自然と大切にしたくなるし、居心地がいい。
賃貸のときは不満があったわけじゃないけど、今は“家にいたい”と思うようになりました。
賃貸の家賃と変わらない支出で、これだけ満足できるのは、リノベを選んだからこそだと思います。
自慢の家になりました。
奥さま:選んだものに自分たちなりのストーリーがあるのがいいですよね。
こうやって決めて選んだとか、こんな相談したなとか。
まだ住んで間もないですが、年月が経ってくると記憶が重なって、もっと面白くなるんじゃないかと楽しみです。

完成後も「もっとこうしたい」というアイデアが次々と浮かぶというKさん夫婦。
家は“終わりのない楽しみ”だと感じさせてくれるその言葉に、リノベーションの本質が見えました。
これからも暮らしを重ねながら、より深く、より豊かに。
家は、ご家族とともに育っていくのでしょう。
Kさん、お忙しい中、取材・撮影にご協力いただき、ありがとうございました。
このお宅のリノベーション事例を見る
タイプ l マンション
世帯人数 l 4人
面積 l 94㎡
間取り l 2LDK+doma
他の記事はこちら
住空間の事例はこちら
アスタージャーナルはこちら